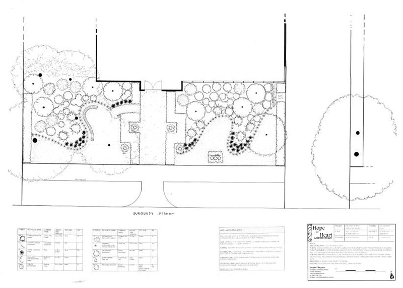
The garden in front of these medical suites had been neglected for years. There were a number of Eucalypts that retained value, but the other trees were of poor health and aesthetic value. The ground was heavily compacted clay and very thick dry pine mulch. The aspect was largely shaded. It presented considerable challenges in developing a garden that would thrive in these conditions. The brief was simple – develop a low maintenance garden that would enhance the appearance of the old and tired 1970’s building.
A design was developed for an entirely native garden with plants chosen for their tolerance of shade and clay soils; the eucalypts were retained and the area was opened up with spaces for seating using beautiful curves and Tuscan topping. Much work was done on soil preparation and an irrigation system was installed, particularly to assist in establishment.



There were few changes from this plan during construction although the proposed custom bench seating was replaced by a commercially available decorative metal seat to save on costs.














