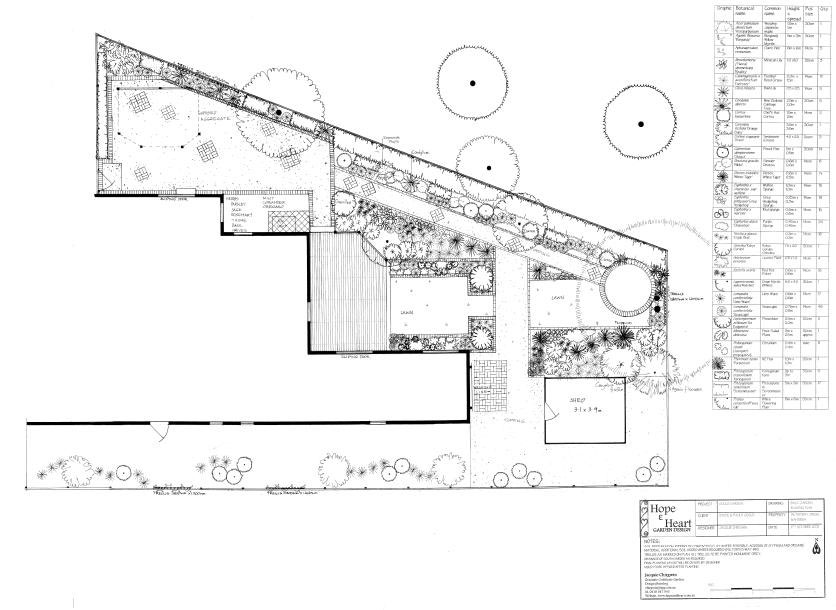
The owners had only used their garden as a children's play area for many years and it had become very rundown. Their children had grown up and they were now keen to use their garden for barbeques, entertaining and as an appealing and restful place to sit and relax. Thus the brief was to create a garden with a lovely aspect from the existing verandah, convert the disused spa area to a covered BBQ area with an attractive new hard surface. The owners were also keen to include a lawn and new, large shed, and must be dog friendly.


















